Cabinet de gynécologie – Centre vésical de la femme

 
8500 Frauenfeld,
Suisse

Publié le 27 mars 2026
Studio Archimed GmbH
Participation au Swiss Arc Award 2026

Données du projet

Données de base

Situation de l'objet
Lindenweg 7c, 8500 Frauenfeld, Suisse
Catégorie de projet
Type de bâtiment
Achèvement
05.2025

Données du bâtiment selon SIA 416

Étages
2 étages
Surface de plancher
290 m²
Coûts de construction (BKP 2)
900'000 CHF

Description

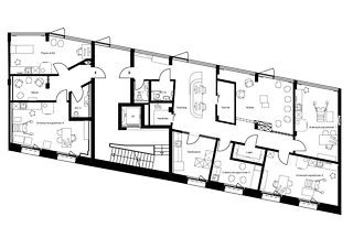
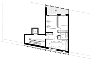
Le cabinet de gynécologie Centre vésical de la femme se situe au rez-de-chaussée de l’ensemble résidentiel Lindenweg à Frauenfeld, sur l’ancien site industriel de l’entreprise Herzog. Cet ensemble a été conçu et réalisé par le bureau d’architecture Diagonal à Winterthour. Les locaux médicaux se trouvent au rez-de-chaussée. On y trouve l’entrée principale avec réception, une zone d’attente, un laboratoire, une pharmacie ainsi que quatre salles d’examen. Un second espace, clairement délimité, est spécialement dédié aux examens de la vessie, qui constituent le domaine de spécialisation du cabinet. Pour ces examens, un WC patient séparé ainsi qu’une salle d’examen équipée d’appareils spécifiques sont à disposition. Le premier étage accueille les espaces de repos et les vestiaires du personnel ainsi que les zones administratives. Un espace multifonctionnel y a également été prévu, pouvant être utilisé pour des formations, des réunions internes ou des présentations. L’aménagement des espaces du cabinet suit un concept clair : alors que la zone semi-publique – comprenant la réception, l’espace d’attente et les couloirs – est conçue de manière à évoquer davantage un hôtel qu’un cabinet médical classique, les salles d’examen sont aménagées de façon fonctionnelle, en s’inspirant des standards hospitaliers. Les espaces de consultation, quant à eux, offrent une atmosphère agréable et accueillante grâce aux assises de la marque freifra. Un élément central de conception est le revêtement de sol continu en CAF, qui crée un contraste chaleureux grâce à des inserts en bois de noyer dans les zones de réception et d’attente. Deux toilettes pour patients ainsi que l’espace d’attente sont en outre valorisés par des papiers peints caractéristiques, conférant aux lieux une identité propre.

Le projet de Studio Archimed a été soumis dans le cadre du Swiss Arc Award 2026 et publié par Nina Farhumand.

222098277