Gynäkologische Praxis – Blasenzentrum der Frau

1 von 738

 
8500 Frauenfeld,
Schweiz

Veröffentlicht am 27. März 2026
Studio Archimed GmbH
Teilnahme am Swiss Arc Award 2026

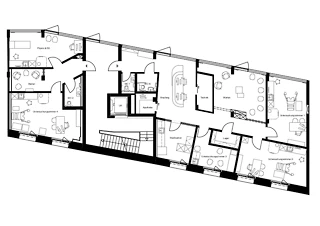
Empfang Warten 1 Warten 2 Untersuchungszimmer Untersuchungszimmer Flur Toilette

Projektdaten

Basisdaten

Lage des Objektes
Lindenweg 7c, 8500 Frauenfeld, Schweiz
Projektkategorie
Fertigstellung
05.2025
Links

Gebäudedaten nach SIA 416

Stockwerke
2
Geschossfläche
290 m²
Gebäudekosten (BKP 2)
900'000 CHF

Beschreibung

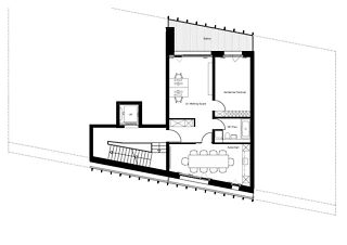
Die gynäkologische Praxis Blasenzentrum der Frau befindet sich im Erdgeschoss der Wohnüberbauung Lindenweg in Frauenfeld auf dem ehemaligen Werkareal der Firma Herzog. Entworfen und realisiert wurde diese Überbauung vom Architekturbüro Diagonal aus Winterthur. Im Erdgeschoss sind die medizinischen Räumlichkeiten untergebracht. Hier befinden sich der Haupteingang mit Empfang, ein Wartebereich, ein Labor, eine Apotheke sowie vier Untersuchungszimmer. Ein zweiter, klar abgegrenzter Bereich ist speziell für Blasenuntersuchungen eingerichtet – das Spezialgebiet der Praxis. Für diese Untersuchungen stehen ein separates Patienten-WC sowie ein Untersuchungsraum mit speziell ausgestatteten Geräten zur Verfügung. Das erste Obergeschoss beherbergt die Aufenthaltsräume und Garderoben für das Personal sowie die administrativen Bereiche. Zusätzlich wurde hier ein Multifunktionsraum vorgesehen, der für Schulungen, interne Besprechungen oder Vorträge genutzt werden kann. Die Gestaltung der Praxisräume verfolgt ein klares Konzept: Während der halböffentliche Bereich – also Empfang, Wartebereich und Korridore – so gestaltet ist, dass er eher an ein Hotel als an eine klassische Arztpraxis erinnert, sind die Untersuchungsräume funktional und in Anlehnung an Spitalstandards eingerichtet. Die Besprechungsbereiche hingegen bieten durch Sitzgelegenheiten der Firma freifra eine angenehme und einladende Atmosphäre. Ein zentrales gestalterisches Element ist der durchgehende CAF-Bodenbelag, der mit Nussbaumholzeinsätzen im Empfangs- und Wartebereich einen warmen Kontrast bildet. Zwei Patiententoiletten sowie der Wartebereich werden zusätzlich durch charakteristische Tapeten aufgewertet und verleihen den Räumen eine individuelle Note.

Das Projekt von Studio Archimed wurde im Rahmen des Swiss Arc Award 2026 eingereicht und von Nina Farhumand publiziert.

214990154