Reiheneinfamilienhaus Oberhofstettenstrasse

 
9012 St. Gallen,
Schweiz

Veröffentlicht am 13. April 2026
STUDIO ROMANO TIEDJE GmbH
Teilnahme am Swiss Arc Award 2026

Blick in die Küche Gemauerte Durchreiche zum Esszimmer Cheminée im Wohnzimmer Blick in das Wohnzimmer - ehemalige Waschküche Eingangsbereich mit Garderobe und Sitzbank Durchbrüche im Obergeschoss Durchbrüche im Obergeschoss Badezimmer im Obergeschoss Durchbruch im Ergeschoss Detailaufnahme Esszimmer mit Bestandstreppe Blick vom Esszimmer in die Küche - Wiedereinbau der alten Forster Küche Zentraler Küchentisch Zentraler Küchentisch mit Spiegelstütze Detail Spiegelstütze

Projektdaten

Basisdaten

Projektkategorie
Gebäudeart
Fertigstellung
02.2026
Links

Gebäudedaten nach SIA 416

Stockwerke
2
Anzahl Kellergeschosse
1
Anzahl Wohnungen
1
Grundstücksfläche
257 m²
Geschossfläche
260 m²
Nutzfläche
200 m²
Gebäudevolumen
683 m³
Gebäudekosten (BKP 2)
360'000 CHF
Parkplätze
1

Beschreibung

Das mittlere Reiheneinfamilienhaus am Hang des Riethüsli oberhalb von St. Gallen ist ein typischer Vertreter des Wohnungsbaus der 1968er-Jahre. Es verkörpert das Ideal des kompakten, funktional organisierten Eigenheims jener Zeit. In seiner baulichen und gestalterischen Substanz – einschliesslich der originalen Forster-Küche – blieb das Gebäude weitgehend unverändert. Die mineralischen Putze, die Materialoberflächen sowie die konstruktiven Details dokumentieren die Baukultur dieser Epoche und bilden die atmosphärische Grundlage des Entwurfs.

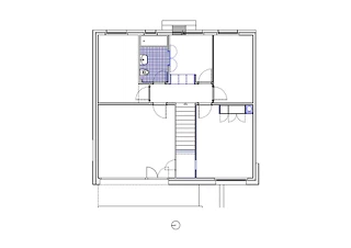
Ziel des Umbaus war es, die räumliche Enge des kleinteiligen Erdgeschossgrundrisses zugunsten einer offenen, zusammenhängenden Raumstruktur aufzulösen, ohne die konstruktive Logik des Bestands zu negieren. Die ehemalige Waschküche sowie der Schutzraum im Erdgeschoss wurden dem Wohnraum angeschlossen und transformiert. Ein zusätzliches Wohnzimmer sowie ein Gästebad mit kombinierter Waschnutzung ergänzen nun die grosszügig konzipierte Essküche als räumliches Zentrum des Hauses. Ein offenes Cheminée ergänzt das Wohnzimmer als atmosphärischer Schwerpunkt. Durch die Angleichung sämtlicher Bodenhöhen entstand eine durchgehende Raumkontinuität. Ein Anhydrit-Unterlagsboden mit integrierter Fussbodenheizung ermöglicht schwellenlose Übergänge und unterstützt die homogene Wahrnehmung des Erdgeschosses. Eine Erdsonde dient als neue Wärmequelle des Hauses. Ein zusätzlicher Wanddurchbruch zwischen Wohn- und Essbereich verstärkt die räumliche Verschränkung und schafft eine umlaufende Zirkulation um den Treppenkern. Unterhalb der Treppe wurde ein introvertierter Rückzugsort für die jüngeren Bewohner:innen ausgebildet – eine räumliche Verdichtung innerhalb der offenen Struktur.

Im Obergeschoss bleibt die kompakte Organisation mit vier Schlafzimmern erhalten. Die funktionalen Beziehungen werden jedoch neu geordnet: Das Badezimmer erhält eine direkte Anbindung an die Ankleide, welche sich wiederum zum Flur öffnet. Durch die Verlagerung eines Einbauschranks entsteht im zentralen Erschliessungsbereich Raum für eine Sitzbank. Diese fungiert als Ort des informellen Zusammenkommens und ermöglicht zugleich den Einfall von Morgenlicht. Über dem Treppenraum wurde eine Wand bis auf Brüstungshöhe zurückgebaut. Ein zusätzlicher Durchgang schafft eine visuelle und räumliche Verbindung über dem Treppenkern, generiert ein spielerisches Rückzugsversteck und führt Tageslicht in den zuvor dunklen Treppenabgang.

Das Material- und Farbkonzept basiert auf einem bewussten Dialog zwischen Bestand und Intervention. Das Sichtmauerwerk, der ultramarinblaue Küchentisch sowie die graulackierten Holzoberflächen treten in Beziehung zu den bestehenden Putzen und Texturen. Die neuen Elemente behaupten sich eigenständig, ohne den historischen Kontext zu überlagern. Vielmehr entsteht eine atmosphärische Kontinuität, in der Alt und Neu nicht im Kontrast stehen, sondern sich komplementär ergänzen. Die originale Metallküche von Forster aus den 1970er-Jahren wurde in die neue Schreinerküche integriert und verdeutlicht, wie viel Qualität und Langlebigkeit in ihr steckt. Einzelne tragende Wände wurden durch gemauerte Pfeiler ersetzt. Anstelle eines raumhöhenreduzierenden Stahlträgers lagern die vertikalen Elemente auf einer durchlaufenden Deckenfläche, wodurch die Raumhöhe erhalten und eine maximale Lichtführung ermöglicht wird. Die Pfeiler übernehmen dabei eine doppelte Funktion: Sie sind sowohl Teil der Tragstruktur als auch integraler Bestandteil eines Einbaumöbels in Form einer Durchreiche. Konstruktion und Möblierung werden so zu einer ökonomischen und gestalterischen Einheit verschränkt.

Das Projekt von Studio Romano Tiedje wurde im Rahmen des Swiss Arc Award 2026 eingereicht und von Nina Farhumand publiziert.

224050339